Accédez aux ressources directement depuis les compétences, savoirs, activités professionnelles, centres d'intérêt des référentiels, ainsi qu'aux sujets d'examen et séminaires nationaux.
publié le 28 Aoû 2025 par Olivier TOURVIEILLE
Durée : 20 minutes - 1 heure de préparation
Aucun document autorisé – Calculatrice autorisée
L'épreuve s'appuie sur une étude de cas issue d'un dossier fourni au candidat par l'examinateur et présentant un produit pluritechnologique.
Un questionnaire est remis au candidat avec le dossier en début de la préparation de l'épreuve. Il permet de résoudre une problématique technologique (sans entraîner le développement de calculs mathématiques importants) afin d'évaluer des compétences et connaissances associées, de la partie relative aux enseignements communs et propres à l’enseignement spécifique choisi par le candidat lors de son inscription.
Pendant l'interrogation, le candidat dispose de 10 minutes pour exposer les conclusions de sa préparation avant de répondre aux questions de l'examinateur, relatives à la résolution du problème posé.
Les corrigés ne sont pas disponibles.
Mise en situation :
Un propriétaire d’Ingersheim (Haut-Rhin) possède un bien qu’il souhaite placer en location pour deux familles.
Devant les exigences du décret de loi du 13/01/2021 entré en vigueur le 01/01/2023, il est obligatoire de pouvoir assurer une rénovation qui satisfasse les critères imposés par le nouveau Diagnostic de Performance Énergétique (DPE) pour éviter que le bien soit classé G et donc impropre à la location.
Avant juillet 2021, le calcul du DPE pouvait s’effectuer sur la base des factures énergétiques du logement. Il doit désormais s’appuyer uniquement sur le caractère physique du logement et intègre de nouveaux paramètres comme :
- la qualité de l’isolation ;
- le type de fenêtre ;
- les équipements de chauffage utilisés ;
- l’éclairage ;
- la ventilation.
Devant l’augmentation du prix de l’énergie, il devient nécessaire de limiter la charge financière dans le but d’assurer le confort thermique de l’habitation.
Le choix d’un système de ventilation mécanique contrôlée (VMC) devient un élément important pour réaliser des économies d’énergie.
Problématique :
L’objectif est de valider l’installation d’une VMC plus performante.
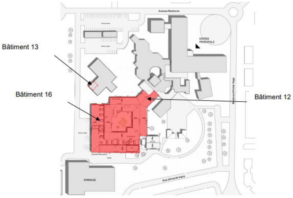
La région Occitanie a entrepris la rénovation complète du pôle technologique du lycée Victor Hugo de Colomiers (31). Le pôle technologique est principalement situé dans le bâtiment 16.
L’étude porte sur ce bâtiment qui est constitué de salles de classe, de salles informatiques, d’un magasin, d’ateliers pour les sections de techniciens supérieurs (STS) ainsi que d’un Fablab.
Le Fablab est un lieu destiné aux élèves pour la conception et la réalisation d’objets 3D.
L’objectif, sans modifier l’emprise au sol, est de créer une nouvelle distribution des salles dans un bâtiment à Haute Performance Énergétique rénovation (HPE rénovation).
Le label « Haute performance énergétique rénovation »
Le label « Haute performance énergétique rénovation » permet de réaliser une opération de rénovation performante du point de vue énergétique sur des bâtiments achevés après le 1er janvier 1948 et il atteste que le bâtiment respecte un niveau de performance énergétique élevé ainsi qu’un niveau minimal de confort en été.
Depuis 2020, ce label impose une consommation d’énergie primaire inférieure à 100 kW⋅h⋅m-2⋅an-1 (production d’eau chaude, éclairage et annexes inclus …).
L’objectif de cette étude consiste à valider le choix d’une baie vitrée.
Une ombrière de parking est une structure conçue pour protéger les véhicules stationnés des intempéries et du soleil en fournissant une couverture ombragée. Elle est généralement composée d'une série de supports verticaux et horizontaux soutenant une toiture ou une structure tendue. Couramment utilisée dans les parkings commerciaux, les parcs de stationnement publics et les installations industrielles, elle permet d’améliorer le confort des utilisateurs. Les ombrières de parking peuvent être équipées de panneaux solaires pour générer de l'énergie renouvelable tout en offrant de l'ombre aux véhicules et en réduisant les émissions de CO2.
Depuis l’adoption de la loi n°2023-175 du 10 mars 2023 relative à l’accélération de la production d’énergies renouvelables, certains centres commerciaux ont l’obligation de couvrir une partie de leurs zones de stationnement par des ombrières solaires sous peine de sanction pécuniaire.
Le propriétaire d’un supermarché du Mans souhaite savoir si son parking est concerné par cette loi et quels sont les aspects économique, sociétal et environnemental d’un tel aménagement.
L’objectif de cette étude est de montrer qu’une ombrière d’un parking de supermarché, équipée de panneaux solaires, est une solution durable pour limiter les émissions de CO2.
Une installation, située à une dizaine de kilomètres de Salon de Provence dans le département des Bouches du Rhône, permet d’assurer conjointement la culture de végétaux (légumes et plantes aromatiques) et l’élevage de poissons de type truites arc en ciel depuis maintenant cinq ans.
L’aquaponie crée un écosystème entre la culture de végétaux et l’élevage de poissons dont les déjections servent d’engrais. Une pompe immergée située dans le fond du bassin à poissons permet d’acheminer l’eau souillée par les déjections jusque dans le bac à culture. L’eau filtrée redescend ensuite par gravité dans le bassin à poissons.
Une station aquaponique correspond à l’association d’un bassin à poissons et un bac à culture.
Fort de l’expérience très positive de ces quelques années d’exploitation, le propriétaire de cette ferme aquaponique décide d’agrandir son exploitation.
L’objectif est de valider les choix et le dimensionnement de la ferme aquaponique avant réalisation.
Les extensions des communes de St André de Cubzac et de Fronsac en Gironde entraînent une augmentation des besoins en traitement des eaux. La modernisation de la station d’épuration (STEP) est complétée par un réseau de méthanisation pour produire du biogaz et ainsi baisser l’empreinte carbone des communes.
Le site, en activité depuis 2021 est composé de deux parties :
- la méthanisation ;
- le traitement des eaux sur deux files d'eau.
L’objectif de cette étude porte sur la validation de différentes solutions apportées au projet afin de limiter l’impact environnemental de celui-ci tout en montrant que la station produit plus d’énergie qu’elle n'en consomme.
Le véhicule choisi s’inscrit dans la gamme des véhicules SUV (Sport Utility Vehicle) et il est très en vogue sur le marché automobile actuel.
Il est proposé en différentes motorisations essence et diesel hybride.
Une propulsion hybride électrique consiste à combiner un moteur thermique avec un ou plusieurs moteurs électriques, afin de profiter des avantages de chaque type de motorisation.
Ce véhicule est un PHEV (Plug-In Hybrid Electric Vehicle) avec une batterie rechargeable sur le réseau électrique ce qui permet de rouler en 100 % électrique.
Les besoins d’un utilisateur urbain moyen sont de pouvoir :
- parcourir 60 km (en mode 100 % électrique) ;
- recharger la batterie de son véhicule en moins de 8 h à son domicile.
L’objectif de cette étude porte sur la validation des caractéristiques du véhicule hybride rechargeable permettant de satisfaire les besoins d’un utilisateur urbain.
Une micro-centrale hydroélectrique est une installation utilisant l'énergie hydraulique pour produire de l'électricité à petite échelle (puissance inférieure à 2 MW) grâce à une turbine. Dans le système étudié, cette électricité est envoyée à un réseau public de distribution d’électricité (réseau 230V).
Il est parfois nécessaire de couper l’arrivée d’eau en amont de la turbine pour cesser de produire.
Sur une turbine de type « Pelton », le dispositif anti-emballement est constitué par un déflecteur qui peut être très rapidement positionné de sorte à dévier le jet d'eau issu de l'injecteur, afin de lui faire éviter la roue. Son temps de manœuvre est de l'ordre de quelques secondes. Le jet ne touchant plus la roue, l'injecteur et/ou la vanne de garde peuvent fermer l'arrivée d'eau lentement pour éviter tout risque de coup de bélier dans la conduite.
La société EREMA (Isère) a développé le système PEP (pour Pneumo-Électro-Positif), une commande électro-pneumatique des turbines qui remplace les commandes oléohydrauliques polluantes couramment utilisées. Le système PEP est basé sur un actionneur linéaire électrique (aussi appelé vérin électrique).
Cet actionneur est une simple vis entraînée par un motoréducteur à courant continu alimenté en 24V. De forme compacte, il intègre ses capteurs de fin de course à coupure directe et son potentiomètre de mesure de position.
L’objectif de cette étude est de vérifier, d’un point de vue mécanique et environnemental, qu’il est bénéfique de remplacer le système oléohydraulique par le système PEP.
Le kit Smart Pie est un kit d’assistance électrique discret, efficace et compatible avec la plupart des vélos (vélo de ville, VTC, VTT, vélo pliant, remorque, trottinette, ...).
Le kit intègre un moteur électrique sans balais (brushless) performant et fiable, parfaitement adapté à une utilisation en ville, sur route ou en randonnées. Il permet de gravir des dénivelés ponctuels d'environ 10 %.
La connectique est simplifiée pour faciliter l'installation du kit et transformer rapidement le vélo en vélo électrique. Chaque connecteur est numéroté et équipé de détrompeur.
Le moteur Smart Pie est équipé d'un contrôleur interne programmable. Le contrôleur se trouve directement dans le moteur. Il n’y a pas besoin de boîtier supplémentaire pour fixer le contrôleur sur le vélo.
L’objectif est de montrer que le kit Smart Pie permet, dans une démarche de développement durable, d’aider les personnes qui le souhaitent à se rendre sur leur lieu de travail en équipant leur ancien vélo.
Pour un transport maritime plus écologique
Le transport maritime achemine plus de 90 % des marchandises dans le monde. Dix milliards de tonnes de marchandises sont transportées par voie maritime ; ces dernières sont ensuite livrées aux destinataires le plus souvent par camions. Face à cet enjeu les acteurs internationaux du transport maritime conventionnel se sont engagés, selon les accords de Paris, à réduire les émissions CO2 du secteur de 50% à l’horizon 2050.
Le cargo voile, le navire du futur :
Un regroupement d’entreprises, dont Meta, travaille actuellement sur la construction d’un cargo voile nommé voilier 2WS (Wind WinSolutions). La voile représente des avantages écologiques ainsi qu’économiques.
Elle diminue également les risques de pollution aquatique. En parallèle, le développement du cargo voile permettrait l’émergence d’un nouveau secteur industriel naval (créateur d’emplois), le développement des zones portuaires côtières et fluviales, l’emploi de canaux existants, et l’abaissement de la vitesse commerciale (11 nœuds au lieu de 15) en aboutissant à une économie de carburant substantielle.
Les avantages du transport fluvial et côtier :
Alors que la logistique pose de plus en plus de questions, le gouvernement français envisage de développer le réseau fluvial et côtier. L'idée de développer ce type de transport comme alternative écologique est simple : les bateaux auraient alors un rôle d’entrepôts, ils faciliteraient le transport des marchandises vers le client final, avec trois atouts complémentaires importants :
- il répond au manque de place au cœur des métropoles ;
- il participe à réduire le trafic routier surchargé en ville ;
- il nécessite peu d’aménagements, puisque les grandes métropoles comptent, pour la plupart, un trafic fluvial régulier.
L’objectif de cette étude est d’étudier la pertinence, pour la société Méta, du développement commercial de son voilier 2WS pour le transport de marchandises, sur les fleuves, les canaux et les côtes européennes.
L’un des principaux défis du secteur agricole consiste à nourrir une population mondiale en expansion tout en réduisant son empreinte écologique et en préservant les ressources naturelles pour les générations futures (source OCDE).
Pour répondre à ces défis, différentes solutions existent. L'une d'elles consiste à revoir les méthodes de production. L’aquaponie en est le parfait exemple. L’aquaponie consiste à cultiver des végétaux en symbiose avec des poissons en supprimant l’utilisation d’engrais et de pesticides. Les poissons produisent des déjections pleines d’ammonium qui sont transformées naturellement en nitrates par des bactéries. Les plantes consomment ces nutriments pour leur croissance et filtrent alors l’eau des poissons qui leur revient propre.
L’aquaponie est possible en zone urbaine et périurbaine car elle peut se pratiquer en intérieur, sur les terrasses et les toits des immeubles. De ce fait, le modèle est particulièrement adapté à l’essor des circuits courts. L’aquaponie favorise ainsi le développement d’une économie locale et de vente directe, limitant de fait les coûts et émissions de CO2 liés au transport. Pour que cet environnement puisse fonctionner, il est important de contrôler régulièrement le système en réalisant des mesures sur le pH, la température et la conductivité de l’eau. Ces trois paramètres permettent de maintenir le système en bonne santé. Dans le cadre d’une ferme commerciale, la prise de mesures de ces paramètres se fait via un système automatique.
L'objectif est de valider l'amélioration de la production d’une ferme commerciale en optimisant les objectifs du développement durable et la communication à distance du système de mesures.
Le téléphérique de Brest est un téléphérique urbain ouvert depuis novembre 2016. Il permet de relier les deux rives de la Penfeld, fleuve côtier qui traverse la ville et qui sépare le centre-ville et le quartier des Capucins.
La rive gauche a vu se développer le centre-ville et l'attractivité économique, tandis que le développement de la rive droite a été freiné par la coupure urbaine que représente la Penfeld. Afin de redynamiser la rive droite, il a été décidé de créer un nouvel écoquartier, le quartier des Capucins. A la place des anciens ateliers militaires du même nom, ce site représente une surface de 16 hectares accueillant 560 logements, des commerces, des bureaux, un cinéma multiplexe et une nouvelle médiathèque de 9 700 m².
Le quartier des Capucins se trouve à mi-chemin entre les deux ponts de la ville qui sont très fréquentés aux heures de pointe. Ainsi, le téléphérique urbain a permis de répondre de façon innovante au besoin d’accessibilité et d’attractivité de ce quartier en mutation, qui se trouve maintenant à trois minutes du cœur de ville.
L'objectif est de valider le choix des solutions techniques retenues pour assurer un transport confortable pour les passagers.
Depuis l’épisode COVID, les oxymètres de pouls portables sont devenus des appareils indispensables à tout cabinet médical ou établissement de santé. Ils permettent de poser rapidement un début de diagnostic sur l’état de santé d’un patient.
Le gestionnaire d’un centre médical souhaite acquérir des oxymètres de pouls.
Il souhaite également s’équiper d’un système de centralisation des informations médicales des patients pour faciliter le travail des soignants déjà équipés de balances, de glucomètres et de tensiomètres supportant la technologie sans fil BLE (Bluetooth Low Energy).
ll s'agit de valider l'autonomie de l'oxymètre et son confort d’utilisation pour le patient, ainsi que l'acquisition des données transmises (taux d’oxygène et fréquence cardiaque) par le serveur local de données via la passerelle BLE.