Accédez aux ressources directement depuis les compétences, savoirs, activités professionnelles, centres d'intérêt des référentiels, ainsi qu'aux sujets d'examen et séminaires nationaux.
publié le 30 jan 2026 par José PAUTREL
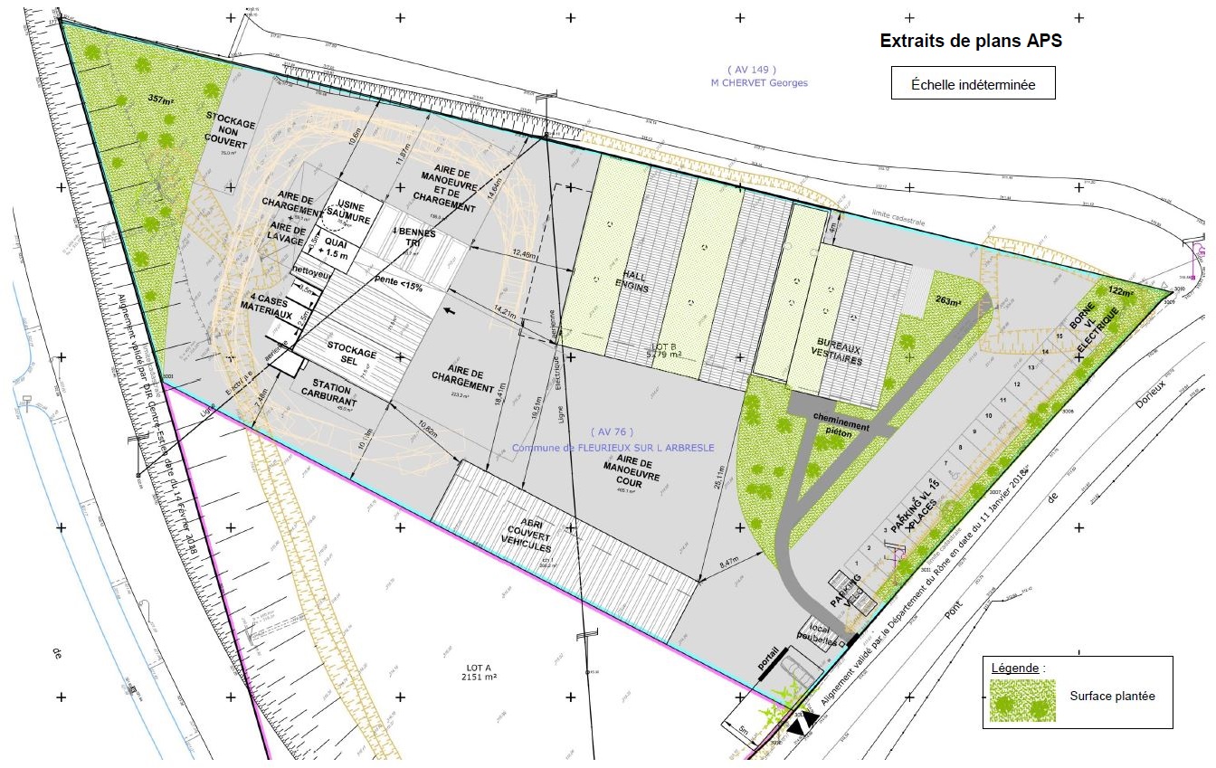
Le département du Rhône a pour projet la construction d’un centre d’exploitation routier à Fleurieux-sur-l’Arbresle pour un effectif d’environ 12 personnes. Le terrain mis à disposition (parcelle AV76) est d’une surface totale de 7 468 m² dont 5 279 m² réservés pour l’opération.
Le projet est de créer un bâtiment qui s’inscrit dans une démarche de développement durable intégrant des éléments environnementaux forts.
Le projet se compose de 3 groupes bâtis :