Accédez aux ressources directement depuis les compétences, savoirs, activités professionnelles, centres d'intérêt des référentiels, ainsi qu'aux sujets d'examen et séminaires nationaux.
publié le 04 fév 2021 par José PAUTREL
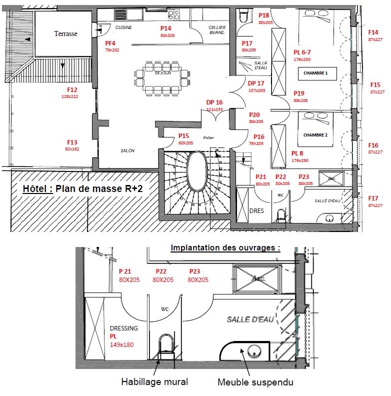
La société qui vous emploie a été sollicitée pour des travaux d'aménagement dans un hôtel.