Accédez aux ressources directement depuis les compétences, savoirs, activités professionnelles, centres d'intérêt des référentiels, ainsi qu'aux sujets d'examen et séminaires nationaux.
publié le 29 nov 2024 par José PAUTREL
Centre aqualudique
Les études portent sur la construction d’un centre aqualudique, qui comprend un bassin sportif, un bassin ludique, un espace bien être, une zone vestiaire et un niveau en sous-sol pour la centrale de traitement d’air. Deux accès à l’ouvrage permettent d’accéder à ces espaces grâce notamment à une passerelle métallique suspendue.
Le sujet porte sur l’étude du plancher haut de la zone de la centrale de traitement d’air, sur la structure du bassin sportif, et sur la structure de la passerelle métallique suspendue.
Descriptif de la zone de la centrale de traitement d’air (CTA)
La structure est en béton armé, et comprend des poteaux, des poutres, des voiles et des dalles.
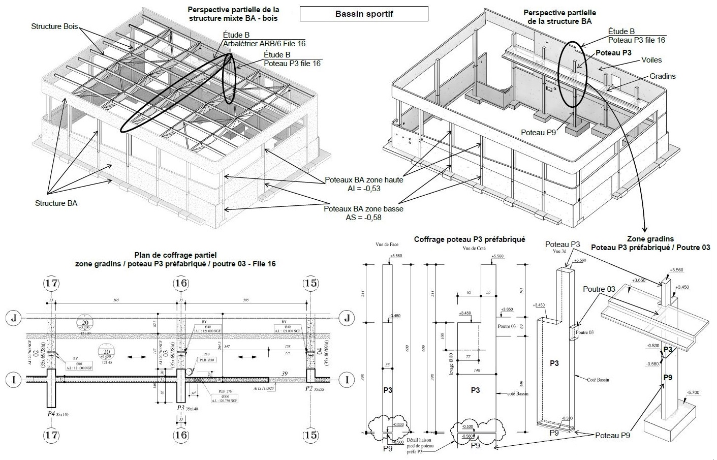
Descriptif de la structure du bassin sportif
La structure est mixte, en béton armé et en bois. La structure principale en béton armé est composée de :
La charpente bois est composée de poutres principales en lamellé-collé de hauteur variable, de pannes en lamellé-collé, et d’une couverture en bac acier isolée étanchée végétalisée, de pente courante 3,1%, négligée. Cette charpente prend appui sur les têtes des poteaux préfabriqués.
Descriptif de la structure métallique de la passerelle du hall
La passerelle, portée par des arbalétriers bois de hauteur variable, est composée :