Accédez aux ressources directement depuis les compétences, savoirs, activités professionnelles, centres d'intérêt des référentiels, ainsi qu'aux sujets d'examen et séminaires nationaux.
publié le 18 juin 2020 par José PAUTREL
L’objet de l’étude porte sur l’extension du Grand Parc de la Mer et de l’aventure MARINELAND situé à une centaine de mètre du littoral méditerranéen dans la commune d’ANTIBES.
Le Maitre d’Ouvrage projette la réalisation, d’un nouveau bassin «Le lagon des dauphins » ainsi qu’une terrasse ombragée destinée à une restauration rapide.
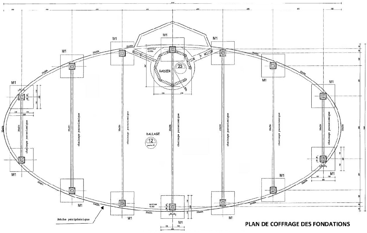
La terrasse ombragée a une forme elliptique qui abrite des tables et chaises et un petit kiosque permettant une restauration rapide.
PARTIE A : Conception générale du projet
PARTIE B : Étude mécanique d’une ferme
PARTIE C : Étude des plans d’exécution en béton armé