Accédez aux ressources directement depuis les compétences, savoirs, activités professionnelles, centres d'intérêt des référentiels, ainsi qu'aux sujets d'examen et séminaires nationaux.
publié le 17 juin 2020 par José PAUTREL
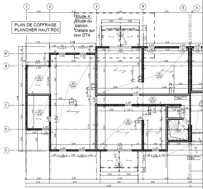
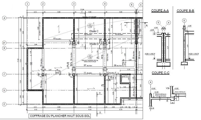
L'étude porte sur un bâtiment R+2 de 16 logements.
Le bâtiment comporte :
Le système constructif est le suivant :
• voiles béton en façade et refends • poutres en béton armé • dalles sur prédalles précontraintes