Accédez aux ressources directement depuis les compétences, savoirs, activités professionnelles, centres d'intérêt des référentiels, ainsi qu'aux sujets d'examen et séminaires nationaux.
publié le 05 déc 2025 par José PAUTREL
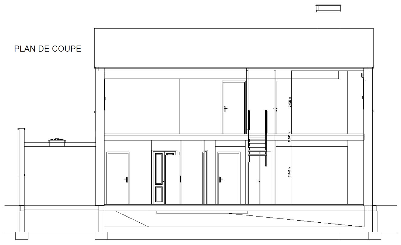
Ce sujet a pour support la construction d’une villa au N°12 Chemin de saint marc sur la commune de Bandol (83150)
Cette épreuve consiste en une étude et une préparation de l'intervention.
Cette épreuve consiste en la réalisation des travaux suivants :