Accédez aux ressources directement depuis les compétences, savoirs, activités professionnelles, centres d'intérêt des référentiels, ainsi qu'aux sujets d'examen et séminaires nationaux.
publié le 04 déc 2015 par Emmanuel HOLTZ
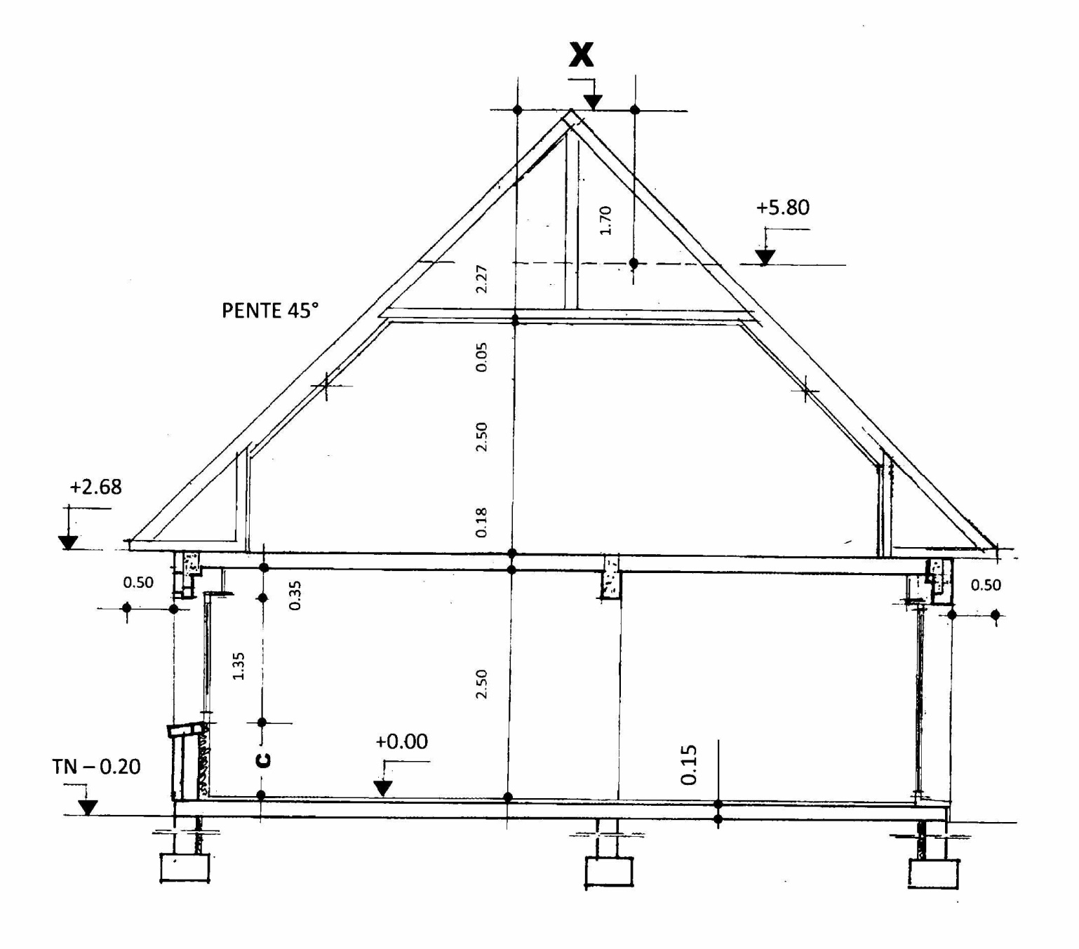
Le projet présenté est la construction du pavillon individuel de plein pied de M. et Mme Dupont.