Accédez aux ressources directement depuis les compétences, savoirs, activités professionnelles, centres d'intérêt des référentiels, ainsi qu'aux sujets d'examen et séminaires nationaux.
publié le 29 jan 2021 par José PAUTREL
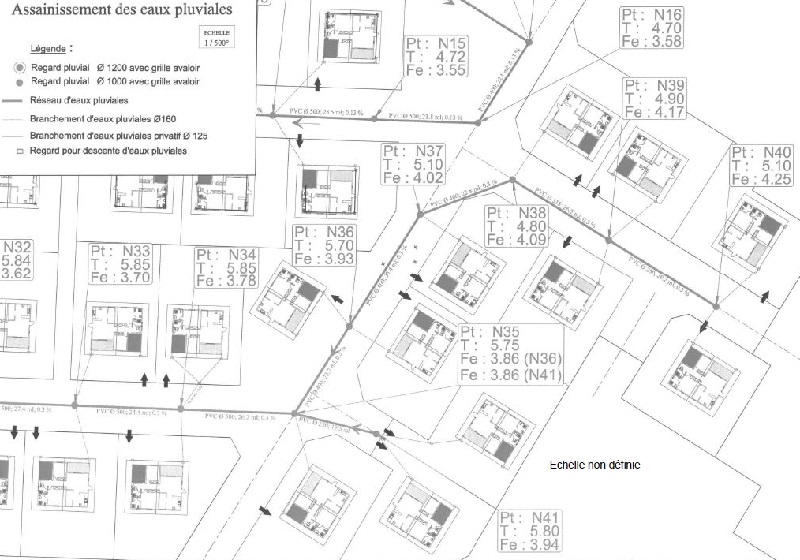
Le sujet 2019 s’appuie sur l'exécution des réseaux de collecte des eaux usées et d’assainissement des eaux pluviales d’une l’opération de 61 logements, résidence Val du Lac, située sur la commune de Macouria dans le département de la Guyane.